sueben building design
sueben building design

projects

2017

creating floor-

plans and

sections

of an existing

house in the

netherlands

 

 

front view

overview

 

 

 

 

 

visual of the open dining-room

 

 

 

 

 

 

 

 

 

2015

 

row of seven townhouses

near münster,

germany

view from garden at night

for more see 2015 townhouse

2009

 

pavillon

at an indonesian zoo

 

steenwijk, the netherlands

sketch drawing

section

view from terrace and garden

side view

 

construction principle

 

 

 

 

 

 

 

 

 

 

 

 

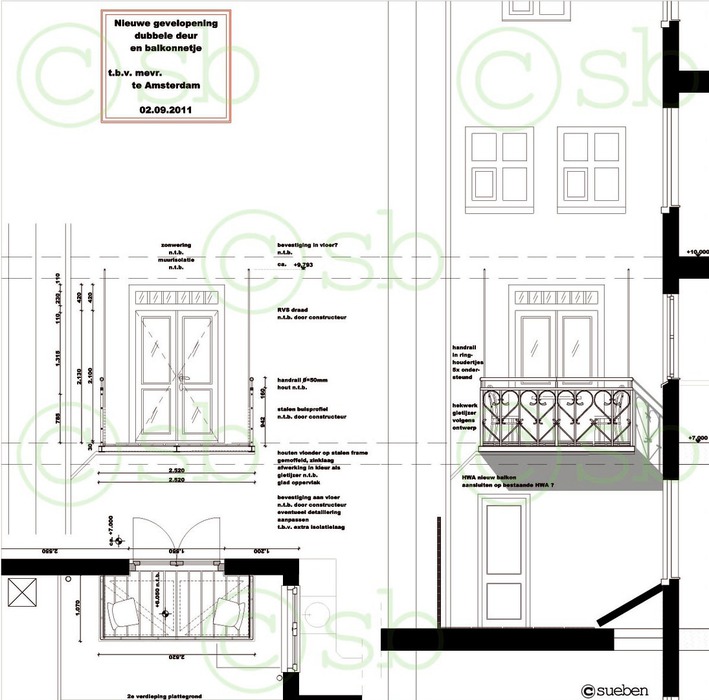
2011 balcony

amsterdam, the netherlands

before and after

 

 

 

 

 

 

 

 

 

 

2013

 

roof windows in a monumental farmhouse

 

steenwijk, the netherlands

section

 

 

 

 

 

 

 

 

 

 

 

 

 

2008

extension dwelling

steenwijk, the netherlands

 

 

sueben building design

 

 

Druckversion | Sitemap
©sb ©sueben © sue bensinger